hirotaka sugisaki
project
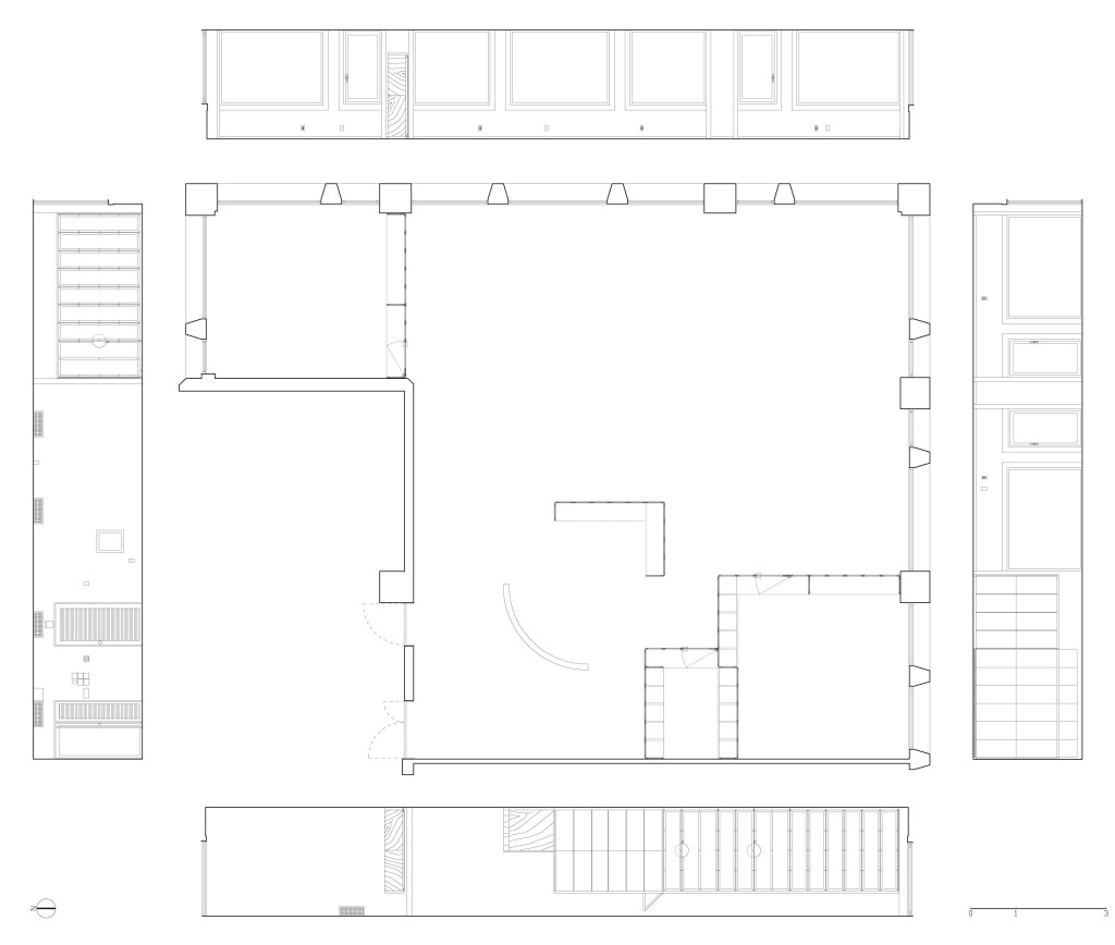
001 house in kakuda
house in kakuda
type: space
function: house
location: kakuda, miyagi
floor: 99m2
collaborator: ono kenchiku(construction), masafumi tsuji(photo)
date: 2022.5
publication: jt2405, p.66, Everything is Repeating
















002 OS
OS
type: space
function: studio
location: aoyama, tokyo
floor: 30m2
collaborator: w/(design), fukuwaza(construction), masafumi tsuji(photo)
date: 2022.9
publication: jt2406, p.143









003 OS+
OS+
type: objects
function: furniture
location: aoyama, tokyo
material: aluminum
collaborator: w/(design), ghost furniture(construction/photo)
date: 2023.6






004 TH
TH
type: space
function: residence
location: mizonokuchi, kanagawa
floor: 50m2
collaborator: w/(design), sherpa woodworks(construction), masafumi tsuji(photo), yukasa narisada(photo)
date: 2024.3
publication: jt2405, p.131, jt2406, p.138














005 ST
ST
type: space / objects
function: office
location: shinagawa, tokyo
floor: 150m2
collaborator: yu ziliang(design), w/(design),
neufurnitureworks(construction), yukasa narisada(photo)
date: 2024.3



















006 CG
type: space / objects
location: cage galley, tokyo
collaborator: w/(design), system of culture(photo), masayuki makino(graphic object/book)
date: 2025.8-9
















007 PB
PB
type: space / objects
location: plateau books, tokyo
collaborator: w/(design), system of culture(photo), masayuki makino(graphic object/book), chika kato(text), gottingham(text)
date: 2025.8-9
we were in the kitchen, we refer to...



















008 DJ
type: object / image
function: exhibition
location: jingumae, tokyo
collaborator:
on going
009 OS++
type: objects
function: furniture
location: aoyama, tokyo
material: aluminum
collaborator:
on going
010 SG
on going
text
001 アルド・ロッシによるコラージュ作品『類推的都市』の構成に関する研究
アルド・ロッシによるコラージュ作品『類推的都市』の構成に関する研究
type: thesis
date: 2019.7
publication: AIJ

アルド・ロッシによるコラージュ作品『類推的都市』の構成に関する研究
1-1. 研究の背景と目的
アルド・ロッシ(1931-1997 年)は自著『都市の建築』(1966) において「類推的都市」という概念を提唱し世界的な評価を得た。1976 年のヴェネチアヴィエンナーレでは『類推的都市』というコラージュ作品を発表し、概念と同様に広く一般に知られている。しかしこのコラージュ作品を構成する要素がどのように構成されたものであるかについては分かっていない。そこで本研究では『類推的都市』の画面を分析し、 コラージュの構成法を明らかにすることを目的とする。
1-2. 既往研究と位置づけ
これまで、「類推的都市」の概念に関する研究に松政1)の研究があり、ロッシの包括的なドローイング研究に千代2)の研究があるがこれらはロッシの創作論として位置付けられる。コラージュ作品『類推的都市』を対象とした研究では、 Rodighiero3)により出版された研究があり、コラージュを構成する建築・都市・絵画、ロッシの作品が44要素特定されている。以上の既往研究を踏まえたうえで本研究では、コラージュの構成法を明らかにするものとして位置付ける。
1-3. 研究方法
はじめに、コラージュ作品をThe Analogous City, The Map3) における既往研究をもとに要素に分解し、制作年と場所で整理する。次に要素の重なりをレイヤーに分けることにより画面の大きな構成を整理する。そして、背景と前景の各レイヤーについて構成要素は何か、どのように構成されているかを分析する。
2. コラージュ作品『類推的都市』の要素
The Analogous City,The Map3)の研究をもとに要素の年代的特徴をみると、一番古いもので紀元前 16 世紀から、現代までとルネッサンス以降を中心に建築史を遡り抽出しており、 場所に関しても、ロッシの記憶が強く反映されている北イタリア、南スイスを中心としながら、ロッシの訪れたことのあるヨーロッパ各地から要素を抽出してきていることが明らかになった。また、The Analogous City, The Map3)で抽出されていた44要素に加え、新たに4つの要素が抽出され、そのうち1つ(no.45)はイタリア、ローマの霊廟である「Mausoleum」のプランであると推察される(fig.1)。

3-1. コラージュ作品『類推的都市』の構成
大まかにこの作品の画面構成を見てみると田園・都市といったものを背景とし、そこに埋め込まれる歴史的要素、そのさらに上に配置される自作、その前後に位置する日常の風景や幾何学模型どといったものの 5 つのまとまりのレイヤーとして解釈することができる(fig.2)。これらはそれぞれ、時間的にも空間的にも全く異なる系列に属する要素が同じ空間に埋め込まれているため、現実の実空間では表現されることのない空間が実現されている。また構成される際、パースペクティヴと平面図が並置され、スケールが無視されていることによってもその虚構性が強調される。

3-2. 背景の構成
画面の背景は大きく分けて、コモの「現代の都市」(fig.3 左上)、北イタリア、南スイスの「田園地帯」(fig.3 右上)、ピラネージの「記念都市」(fig.3 左下)、ウィトルヴィウスの「理想都市」(fig.3 右下)の4 つの背景に分けることができる。また、画面を水平方向に二等分することで下半分の北イタリア、南スイスで見られる具体的な田園地帯と上半分の都市的背景に分けることができる。田園地帯にはその土地で見られる伝統的な住居群や湖に面した城壁が埋め込まれており、都市には仮想と現実、時代と場所の異なるさまざまな都市的、歴史的建築が埋め込まれている。

3-3. 自作の構成
画面下半分の田園地帯にある埋め込まれたスイスに建つ住宅群の横には、共同制作者の住宅作品が伝統的な家屋と呼応するように、そしてロッシの傾斜地に建つ住宅は森の傾斜に対応するように配置されている。また都市図の中にはロッシが都市に計画した住宅やモニュメントが、様々な時間と場所的特徴を持った都市的要素と中庭や回廊といった都市的タイポロジーを介して関係を持っている。また丸、三角、四角などの類似するかたちからも考察できると考えられる。 現存するグリッド都市であるコモに、ロッシの自作であるグリッド平面をしたモンツァの住宅の計画、そして、ロッシが設計でもたびたびモチーフとして取り出す四角いかたちをした十字窓が、スケールを変え形が対応するように配置されている。ここまで見てきた自作と背景との関係性をもう 1 度全体的な画面で見ると、1 つの要素が建築のタイポロジーや類似する形などによって周りの要素と多重的な関係を結んでいることが明らかとなった。
4. 結論
コラージュに含まれる要素は、ロッシの活動の中心地であったイタリアとスイスから得られたものを中心とし古今東西さまざまなオブジェクトによって構成されており、歴史的背景や自作といったレイヤーの重なりによって構成されていることが明らかとなった。また自作は背景に埋め込まれる際、背景から読み取ることのできる環境や建築のタイプ、さらには類似的なかたちといったものと密接な関係を結んでいることも明らかとなった。コラージュに含まれる要素は画面の中で隣り合っているものだけでなく、多重な関係を結び合っていた。ロッシはコラージュという手法により、自作を時間と空間を超えたものの中に位置付けようとしていたと考えられる。
参考文献
1) 松政 貞治: 都市建築における類推の概念について -アルド・ロッシの類推的建築を通して-, 日本建築学会計画系論文集 , 2001 年
2) 千代 章一郎: アルド・ロッシにおけるドローイングの制作について,日本建築学会近畿支部研究報告集 , 日本建築学会, 1994年
3) Dario Rodighiero: The Analogous City, The Map, Archizoom EPFL, 2015
004 現代住宅作品におけるスケールの参照関係
現代住宅作品におけるスケールの参照関係
type: thesis
date: -
publication: AIJ
coming soon
005 環境、自律、匿名
環境、自律、匿名
(text for "house in kakuda")
type: text
date: 2024.5
collaborator: masafumi tsuji(photo)
collage: hirotaka sugisaki
publication: jt2405, p.68

環境、自律、匿名
農村地域に住宅を新築する計画である。正面に広大な田畑、背後には山があり異なる雰囲気が広がっている。また周辺には青い家や赤い屋根の家々、新旧の混ざった物置きやビニールハウスが建ち並ぶ。農業を営む建主は、個室3部屋と広めの主室、農作業用を含めたふたつの玄関を求めた。
1階には個室3つを、2階には広めの主室を配し、1階2階共に平面の中心に1本の軸を通すことで1階にはふたつの玄関を、2階の主室には両方向への抜けをつくった。上下階の軸には4枚の長方形の窓を、正面の個室と主室には4枚の正方形の窓を設け、平面や立面、断面に現れる内在的なかたちは、スケールと場所を変え反復される。
計画では「建築に外在するもの」と「建築に内在するもの」との関係を考えることで、小さな家以上の広がりを建築に取り入れようと考えた。諸室で反復される同じかたちの窓は異なる風景を相対化し、その差異が外部環境への感覚を拡張する。さらに、敷地周辺で見られる農作業小屋の反復する窓や、淡々と繰り返される街灯や電柱、民家の赤い切妻屋根の重なりといった周辺環境の外在性は、建築の内在的なかたちの反復により顕在化される。



設計段階で敷地周辺を歩き回り、印象に残ったものを収集した。たとえばシンメトリーな立面をもった民家や倉庫、反復して積層される植木、無造作に積まれたコンクリートブロックなどである。ここで得たイメージから、シンメトリーな立面や平面、三間取りの形式など、時代や地域、機能の異なる建築が類推された。仮にこれらをまとめたものを「具象のコレクション」と呼んでみる。この「具象のコレクション」を俯取して眺めると、より抽象的な認識が浮き上がる。たとえば、貫通、積層、反復などだが、これらを幾何学的なかたちとして集め、「抽象のコレクション」としてまとめた。ここで得た抽象的な認識は、建築の内部と外部、部分と全体、過去と現在を分け隔てなく考えることを可能にし、時間や場所、スケールを超えたものとして設計に反映される。
具象と抽象のコレクションを等価に並べて眺めると、再解釈されたこの土地らしさのようなものが浮かび上がってくる。これらをプロジェクトの素材として参照し、自作との距離を測りながら設計を進めた。
このように、建築の外在と内在、具象と抽象を双方向に行き来することで、環境的(ambient)で、自律的(autonomous)で、匿名的(anonymous)な建築をつくることができないだろうか。環境に呼応しながらも、自律的なシステムをもち、どこかで見たようなデジャヴがある状態である。こうした状態を意識することで、今・ここのためでありながら、どこか異なる時間やもののためでもある建築をつくれないかと考えた。

006 建築と参照 食人的参照に向けて
建築と参照 食人的参照に向けて
type: essay
date: 2024.12
collaborator: masafumi tsuji(photo)
publication: hitotsuchi

建築と参照 食人的参照に向けて
1. 参照の射程
建築家はこれまでに様々なものを参照し、建築をかたちづくってきた。それは、モダニズム建築にみられる白色など色彩の参照かもしれないし、隣家の屋根の形状などかたちの参照かもしれない。あるいは、人体の大きさに合わせた家具といったスケールの参照かもしれない。ひとつの建築をとっても、このような参照関係が複雑に張り巡らされつくられている1)注1)。建築における参照の特徴を通時的にみると、1970年代では柱や屋根といった建築に内在的な要素同士の参照関係が目立ったのに対し2)注2)、1980年代以降、歴史的な建築や土着的な建築を参照する、ポスト・モダニズムの建築が顕著に現れ3)注3)、建築に外在する意味を参照する多義的な建築が多くつくられた。1990年代以降には、環境問題や自然災害なども影響し、周辺環境の自然や街並みなど、実空間にある建築に外在的な事物の参照が顕著になった。
このような時代を経た現在において、参照という視点を通して、これからの建築を考えてみたい。現代ではどのような参照が可能であるか。そして、どのような参照が求められているのか。今年の夏に訪れたブラジルでの旅の経験が、ある視座を与えてくれた。
2. 食人と参照
私は今年の夏、ブラジルの建築を見て回る機会を得た。建築の調査が目的であったが、1960年代後半にブラジルで誕生した音楽運動であるトロピカーリア4)注4)注5)の影響が、当時の建築にも影響していたのではないかという仮説のもと、ブラジルの5つの都市を巡り、オスカー・ニーマイヤー、ヴィラノヴァ・アルティガス、リナ・ボ・バルディ、パウロ・メンデス・ダ・ホッシャ、エデュアルド・ロンゴらによる建築を調査した。

トロピカーリアでは、音楽運動だけでなく美術や舞台にも類似した動きがみられたが5)注6)、その背景には1928年にオズワルド・ヂ・アンドラージが発表した『食人宣言』6)の影響がある7)8)注7)。この宣言では、食人をモチーフに用いて、西洋の模倣ではないブラジル文化の創造を主張している。ここでの食人とは、実際に人を食べることではなく、社会的・哲学的に他者の一部を自身に取り込み、他者との関係性の中で自己を変容させることであるが、この『食人宣言』がトロピカーリアの思想を形成しているといっても過言ではない。トロピカーリアは単なる音楽運動ではなく、時代遅れの価値観をもつ社会の中で、そして混血の進むブラジル文化の中で、他者を受け入れながら自己を改変し、アーティストたちが自由に生きるための運動だったといえる。このような思想的背景をブラジル建築に期待し、歩みを進めた。
サンパウロに到着し、リナ・ボ・バルディが設計したCasa de Vidro(1950-1951)が建つ敷地の麓にあるリナのスタジオ、Casinha(1986, ポルトガル語で「小さな家」の意)を訪れた。モダニズムの造形言語が顕著なCasa de Vidroとは打って変わって、モダニズム建築にはあまりイメージのない瓦が屋根に用いられている。リナは教会などいくつかの公共的な建築で土着的な瓦を用いているが注8)、それらは経済・施工における合理性をもとに用いられているとのことである9)注9)。実際に瓦を使った建物が多く見られるブラジルにおいて、瓦屋根をもつCasinhaは人々に開かれた建築に感じられた。建築の設計においてあらゆる事物が参照対象となるわけだが、その中でも瓦というマテリアルは土着的な風景を強く想起させる建材のひとつであり、地域に根差した瓦を屋根にもつということは、その地域の建築であるということを強く印象づけると考えられる10)注10)。


パウロ・メンデス・ダ・ホッシャのいくつかの建築を訪れると、モダニズムの建築家であるル・コルビュジエとミース・ファン・デル・ローエの参照を感じるのだが、そのほとんどが立地と機能に関わらず、水平方向に広がる地下、地上、屋根の3層構造でつくられていた。それはブラジルを離れて設計された大阪万博ブラジル館(1969-1970)でも同様である。洞窟のように落ち着いた地下空間と、その上に広がる屋根に守られた外部に広がる空間という形式は、訪れたMuBE(1986-1995)やCasa Gerber(1974)において顕著であったが、ホッシャはこれを空間の祖型として、繰り返し設計しているように思われた。




エデュアルド・ロンゴは球体の建築を設計しており、特徴的な球体を構える2つの住宅を本人に案内してもらえる機会を得た。ロンゴの自邸であるCasa Bola(1979)は、「バックミンスター・フラーやメタボリズム、ブラジルの路地空間に影響を受けたもの」であり、両親のために設計されたCasa Bola(1980)は、「古典主義やパウリスタ派、ハイテック、フューチャー注11)を参照し統合したもの」とロンゴは語る。それは建築家として活動してきたロンゴの世界そのものであり、ロンゴ独自の身体感覚によりそれらは統合されていた。


訪れたこれらの建築はすべて、個々人の建築家がもつ「イメージ」をもとに、様々な参照対象を“食べ尽くし”、新たな“身体”として統合したもののように思われた。ここでの「イメージ」とは、ブラジルという土地のもつ集団的記憶に支えられながらも、共有可能でユニバーサルな強度をもつものであったように感じる。
3. 食人的参照に向けて
ここで一度、私たちが生きる現代に目を向けると、そこにはトロピカーリアが起こった時代と近い状況を世界的にみてとることができる。インターネットや交通網の普及からグローバリゼーションが進行し、モノや情報にあふれた現代では、身近なものだけでなく場所や時間を超えた事物との関係の網が、縦横無尽に広がっている。そんな現代に生きる我々は、常に他者との対話と主体の改変が求められている11)注12)。
様々な関係性が溢れる現代において、一人ひとりがある「イメージ」を抱えながらも、他者との関係の中で自己を改変し続けている私たちは、『食人宣言』に影響を受けたトロピカリスタたちと共通する部分があるのではないだろうか。
共有可能な「イメージ」の実現のためであれば、モダニズムも地域の瓦もあらゆるものを食べ尽くし(参照し)、自律的なシステムとして構築し得るのではないだろうか。モダンの延長としてのポスト・モダンにおける参照とは異なる参照、すなわちオルターモダン注13)な参照を主題とした建築を考えたいが、それは食人的参照といえるかもしれない。「身体」というものを主軸に参照を考えると、衣服を身体に纏わせるように気軽な参照がポスト・モダンだとすると、食人的参照は、食物を身体の中にとりいれ、内側から自己を置き換えていくようなイメージである。食人的参照は、ときに身体を壊す危険性を伴うが、情報が溢れる現代において、情報を有限化し、慎重に参照対象を選ぶ、より切実な参照行為だと考えられる。以上のことより、これからの参照に向けては以下の3つの視座、1.共有可能な「イメージ」をもつこと、2.「イメージ」に必要な参照を時間と空間を超えて行うこと、3.それらを統合する自律的なシステムをもつこと、が大切なのではないかと、今は考える。
注
1) 建築の参照に関する考察は文献1の研究をもとにしている。
2) 内部参照を特徴とする「ミニマリズム」の普及がひとつの影響として考えられる(文献2)。
3) ケネス・フランプトンは『現代建築史』(文献3)のなかで、「ポスト・モダン建築では、古典からの「引用」も土着的な物からの「引用」も、入り乱れて相互貫入する傾向を見せている」と述べ、多義的で参照的なポスト・モダンにおける建築の特性を位置づけている。
4) 本稿においてトロピカーリアについての言及は文献4を参考にしている。
5) トロピカーリアの特徴のひとつにその ”ハイブリッド” な性格が挙げられる。この音楽運動ではアーティストのカエターノ・ヴェローゾやジルベルト・ジルらが中心となり、ブラジルの伝統的なボサノヴァやサンバと、サイケデリック・ロック、ブルース、さらにはエレクトロニックなど、様々なジャンルの音楽を取り入れたハイブリッド・ミュージックを生み出していた。そして、この自国の伝統的な音楽とインターナショナルな音楽のコラージュは、当時軍事政権とともに復活した、ノスタルジックで時代に逆行する社会的・政治的価値を風刺する役割を担っていた。
6) トロピカーリアの芸術に関しては文献5に詳しい。
7) 食人宣言に関する理解は文献7.8を参考にした。
8) リナ・ボ・バルディの瓦を用いた作品に、「Espírito Santo do Cerrado Church」(1976)、「Santa María dos Anjos Church」(1978)などがある。
9) 『Coleção Lina Bo Bardi』(文献9)で「Espírito Santo do Cerrado Church」について、「木造で、鉄筋コンクリートは絶対に必要な場合にのみ使用された。屋根は植民地時代の瓦で覆われ、床は小さな丸い小石を敷き詰めたセメントのシンプルな配置である。使用されている材料はすべて露出しており、建物の構造に直接塗料が塗られている。これは「エリート主義」のものではなく、住民が経済的に可能な範囲内で建築を開発し、住民の積極的な協力を得て建設することが可能かどうかを調査するものであった」(筆者訳)としており、リナは住民が参加可能な建材や構法の使用を重視し、瓦をその点において重要な建材として位置づけていた。
10) 原広司は『空間<機能から様相へ>』(文献10)の中で、建築の要素を<ルーフ>、<エンクロージャー>、<フロア>に分解しており、中でも<ルーフ>について、「屋根の基本的なはたらき、雨や日差しを除けるはたらきの他に、屋根には空間を象徴するはたらきがある。」、「集落や都市の風景、とくに全体的な景観には、実際に屋根の並び方が大きな影響を与えている」とし、屋根の建築に外在的な環境に対する象徴性を位置づけている。
11) エデュアルド・ロンゴとの会話の中で、ロンゴは球体を指し示しながらフューチャーと形容していた。
12) ニコラ・ブリオーは『ラディカント グローバリゼーションの美学に向けて』(文献11)の中で、「脱中心化した地球規模での交渉、様々な文化に出自をもつアクター同士の多様な議論、異質な言説同士の突き合わせと調整」を現代の特徴とし、現代に生きる我々を「神聖不可侵のアイデンティティを取り除かれた存在としての主体」としている。
13) 文献11において、ブリオーはオルターモダンという概念を提唱している。
参考文献
1) 杉崎広空,塩崎太伸:現代住宅作品における色彩の参照関係と配色意図, 日本建築学会計画系論文集, 第808号, p.2029-2038 2023.6
2) ジェイムズ・マイヤー(著), 小坂雅之(訳):ミニマリズム, ファイドン, 2011.5
3) ケネス・フランプトン(著), 中村敏男(訳):現代建築史, 青土社, 2003.1
4) クリストファー・ダン(著), 国安真奈(訳):『トロピカーリア―ブラジル音楽を変革した文化ムーヴメント』, 音楽之友社, 2005.1
5) 東京国立近代美術館(編):『ブラジル:ボディ・ノスタルジア』, 東京国立近代美術館, 2004.6
6) オズワルド・ヂ・アンドラージ(著):『食人宣言』, 『食人評論』第1号, 1928.5
7) 居村匠:『オズワルド・ヂ・アンドラージ「食人宣言」分析:三つの分類と法概念を中心に』, 美学芸術学論集, 2019.3
8) クロード・レヴィ=ストロース(著), 泉克典(訳):「われら食人種(カニバル), 『思想』1016号, pp.150-160
9) Edições Sesc(編):Coleção Lina Bo Bardi, 2015
10) 原広司:空間<機能から様相へ>, 岩波書店, 2007
11) ニコラ・ブリオー(著), 武田宙也(訳):『ラディカント グローバリゼーションの美学に向けて』, フィルムアート社, 2022.1
007 最大公約数としての色彩
type: essay
date: 2025.7
publication: AIJ
建築における色彩は、かたちやスケールに並ぶ尺度の1つであり、空間の意味形成において重要な造形要素である。また、色彩は視覚的な要素であるが、赤い屋根を見て「暖かい」や「家らしい」などと感じるように、私たちは色彩を言語的な意味と結びつけて認識している。建築において色彩を考えるためにも、色彩が意味をもつ領域を特定することが必要であり、特定したのち、それらを修辞的な関係性、すなわち参照関係として検討することが有効であると考えられる注1)。本稿では、建築における色彩を言葉として認識し、参照関係という観点から考察したい。
色彩の領域と参照関係
建築において色彩が意味をとりうる領域は、大きく以下の3つに分類される[Fig.1]。まず1つ目は、a.建築に内在的な実空間で、「黒い柱」や「黄色の壁」などの【部分】、「青い部屋」や「緑の中庭」などの【室】、「赤いファサード」や「白い内装」などの【全体】などがあげられる。2つ目は、b.建築に外在的な実空間で、「茶色の隣家」や「青い空」などの【環境】である。3つ目は、c.建築に外在的な意味空間で、「日本で伝統的な朱色」や「ポストモダンカラー」などの【記号】である注2)。これらの領域は、色彩による参照関係のための基盤となる。
次に、これら領域を特定された色彩どうしが、どのような参照関係をもつかを、関係の性質と形式から検討する。関係の性質としては、「赤い外壁と補色の緑色の山」というように色彩を対比するものと、「全部が真っ白の建築」というように色を統合するものがある。また、実空間どうしの関係(建築における内部/外部、部分/全体どうしの関係など)、実空間と意味空間の関係、意味空間どうしの関係が認識可能となる。そして、関係の形式としては、Ⅰ.色彩単体どうしの関係、Ⅱ.関係どうしの関係、Ⅲ.関係の中心となる色彩をもつ関係(ツリー型や円形型など)と、大きく3つの参照形式が位置づけられる。1つの建築の中で、これら参照関係の内容と形式が複雑に張り巡らされている。
最大公約数としての色彩
グローバリゼーションが進み、情報が錯綜する現代において、多元的な色彩の組織化が建築に求められている。私は、建築の設計者/研究者として、扱う色彩のもつ領域を特定し、新たな関係性の中にそれらを位置づけることを目指している。現代の色彩のあり方として、1.色彩を複数のレベルで両義的な状態として設定すること(色彩が建築の内部/外部、部分/全体、実空間/意味空間など両義的な状態として認識できること)、2.他者と共有可能な状態にまで関係性の情報量・解像度を落とすこと(情報の有限化/抽象化を行うこと)、に可能性があるのではないかと考える。そしてそれは、複数の空間の「最大公約数としての色彩」といえるかもしれない注3)。

注
注1) 建築における色彩の理解に関する分析は拙著である文献1を参考にしている。
注2) 峯村敏明は論考「生きられるシステム」(文献2)のなかで、参照を「外への参照(サイクルと拡張)」、「内への参照(唯我論と共生)」、「時間的参照(歴史と記憶)」の3つに分類している点で著者と類似した視点を有するといえる。
注3) ニコラ・ブリオーは『ラディカント グローバリゼーションの美学に向けて』(文献3)の中で、「オルターモダン」という概念を位置付けている。また、オルターモダンにおける主体のあり方を「脱中心化した地球規模での交渉、様々な文化に出自をもつアクター同士の多様な議論、異質な言説同士の突き合わせと調整」としており、多様な文化をもつ他者と共有可能なシステム――最大公約数としてのシステム――の創出が求められているといえる。
参考文献
1) 杉崎広空、塩崎太伸:現代住宅作品における色彩の参照関係と配色意図, 日本建築学会計画系論文集, 第808号, p.2029-2038, 2023.6
2) 美術手帖 1974年4月号 第380号 特集 現代美術と公共性, 美術出版社, 1974
3) ニコラ・ブリオー(著), 武田宙也(訳):『ラディカント グローバリゼーションの美学に向けて』, フィルムアート社, 2022.1
008 2つの屋根 / 2つの幽体
type: essay
date: 2025.8
publication: liminal space lab
0. リミナルスペースと建築
建築は単なる物理的な構造体ではなく、空間のもつメタレベルでの関係性を構築する、意味的な構造体でもある。このような文脈で注目すべき概念が、「リミナルスペース」である。ここでは、内部と外部、部分と全体、実と虚など、二項対立的な枠組みを揺さぶる、中立的な空間が重要な意味を帯びている。
こうした空間の特徴は「宙吊り」という言葉によって言い表される。宙吊りとは、明確な意味に固定されない一方で、時間的にも空間的にも多義的な状態に留まることであり、まさにリミナルスペースの空間的特徴をいい当てている。そして、現実から宙吊りになった建築は実と虚の間に漂う「幽体」のようでもある。そこで本稿では、建築家の設計した2つの屋根を手がかりに、いかにして「幽体」のような建築が成立するか、そのレトリックを検討したい。
1. アルド・ロッシの屋根-「図」の幽体
建築家アルド・ロッシの建築には、都市の記憶と形式の抽象性が交差する場として、リミナルな空間が顕在化している。その顕著な作品として、「世界劇場」(Teatro del Mondo, 1979)がある。この小さな劇場は、ヴェネツィアの運河に船で浮かび、ヴェネチアの周りを周遊する。建築が都市の周りをぐるぐると回ることで、建築のもつ形態がヴェネチアに建つ歴史的な建造物群と多角的なレベルで関係をもつ。特に、正8角形の平面で3角形の立面をもつ屋根注1)は、その抽象性と象徴性により、匿名的でありつつ、外在的な事物に開かれた屋根になっている(fig.1)。それは、aでもbでもcでもあり、aでもbでもcでもない、a・b・cの最大公約数(gcd:greatest common divisor)とでもいえるかたちとしてたちあがる。
ロッシは、この他律的であり自律的な状態をもつ建築を、対象化された多様な事物の幽霊のように、すなわち「図の幽体」として、都市にたちあがる蜃気楼のようにうみだす(fig.2)。


2. 坂本一成の屋根-「地」の幽体
建築家坂本一成は、このようなリミナルな空間のレトリックを、住宅という日常的な領域に織り込んだ建築家であると考える。坂本は「南湖の家」の屋根の勾配について、厳しい空間を現象させるゴシックでも、あたたかくやさしいロマネスクでも、幾何学形態がもつ魅力的な力を発散させる矩勾配(45°勾配)でもない、7寸5部勾配(約37°勾配)を採用した注2)とする(fig.3)。この屋根は、非aかつ非bかつ非cとしての、名指すことのできない中立的な状態が意図されているが、この状態にある事物を、ここでは「地の幽体」と呼んでみる(fig.4)。
坂本は、日常の中でこびりつく雑多な意味をことごとく回避し、日常という空間の中にふとしたズレや宙吊りの瞬間を忍ばせることで、建築の意味を微細に揺らすのである。その揺らぎは、建築が、象徴や記号とは別種の、もう1つの日常/祖型になりうる可能性を拓いている。


3. 2つの幽体のレトリック
ロッシや坂本の建築は、リミナルな空間によって、まるで「幽体」のような建築をうみだしている。見慣れた空間に「ズレ」を織り込むことで、経験者の身体や記憶を揺るがせ、空間に詩的な多義性を与える。「世界劇場」は実空間におけるポジティブな幽体として、「南湖の家」はネガティブな幽体としてたちあがるが、どちらもある種の「貧しさ」を纏いながら、無口に見慣れた空間を異化するレトリックをもつ。リミナルスペースはその中立的な空間により、見慣れた風景に違和感を差し込む。それは機能や象徴に還元されない、「意味の宙吊り」を孕んでいる。ロッシや坂本が描いたような空間は、まさにこのリミナリティの豊かさに満ちている。星野が位置づける「散文的な崇高」とは、「ここ」と「よそ」の境界を揺さぶる経験であり注3)、それは建築においても起こりうる。私たちは、建築を通してそのような「知覚の縁」に立たされるとき、実空間以上の何かを体験するのである。
注
1)「世界劇場」(文献1に詳しい)の屋根の勾配は計測したところ56°であるが、その頂点を旗に付随する球の下部まで伸ばすと、60°の勾配(正3角形の立面)になる。すなわち、屋根は「虚の正3角形」の立面をもつ。
2)『日常の詩学』p.50を参照(文献2)。
3)『崇高のリミナリティ』pp.46-49を参照(文献3)。
参考文献
1)Sandro Merendi, Lauro Giovanetti, Dario Ventimiglia, Antonio Martinelli, Piero Casadei, Stefano Bertolucci, Massimo Sorarù:Biennale di Venezia - Aldo Rossi : Il Teatro del Mondo da Venezia a Dubrovnik, ATER, 1979
2)坂本一成:日常の詩学, TOTO, 2001.11
3)星野太:崇高のリミナリティ, フィルムアート社, 2022.12
009 ジョアン・ヴィラノヴァ・アルティガスの窓:参照・空隙・解放
type: essay
date: 2025.8
publication: Window Research Institute

ジョアン・バチスタ・ヴィラノヴァ・アルティガスの窓:参照・空隙・解放
ジョアン・バチスタ・ヴィラノヴァ・アルティガス(João Batista Vilanova Artigas、1915–1985)は、ブラジル近代建築を代表する建築家であり、《サンパウロ大学建築・都市計画学部棟(FAU/USP、São Paulo)》(1961、以下《FAU/USP》と表記)の設計者として世界的に知られている。アルティガスはサンパウロ大学に学び、後にその教授として教育に携わった。特に1950年代以降のブラジル建築界において、「パウリスタ派」1の中心人物として、多くの建築家に影響を与えている2。
以下では、私たちがサンパウロで訪れたアルティガスの2つの初期住宅作品と集合住宅、そして《FAU/USP》にいたる窓の変遷をたどりながら、アルティガスの建築における「解放性」について考えてみたい。
1. 窓と参照
彼の作品、とりわけ初期の作品の窓には、ブラジル国外の建築の「参照」が極めて明確に現れている。アルティガスの1940年代初頭は、フランク・ロイド・ライトの思想に大きな関心を寄せた時期で、その思想はアルティガスの初期の住宅のひとつである《小さな家(Casinha、São Paulo)》(1942)に顕著に表現されている。《小さな家》では、天井まで届く窓、内部空間を拡張する低く大きな屋根、素材の質感を表したレンガの壁、そして正方形を用いた平面など、環境との関係に配慮した空間にその影響が読み取れ、ここでの窓は風景を切り取る「額縁」として機能している。また、都市の伝統的なグリッドに対して45度振った配置はファサードを消滅させ、暖炉を家の中心に据えて室の序列をなくした空間構成は、ライトのプレーリーハウスを彷彿とさせる。これらの計画は、内部と外部、都市と建築といった境界を揺るがし、空間に環境とのつながりを生み出している。

《アルティガス邸Ⅱ(Residência Vilanova Artigas II、São Paulo)》(1949)は、アルティガスがインターナショナル・スタイルの潮流を咀嚼しながら、自身の建築的言語を更新していく、重要な転機となる住宅である3。ここでは構造の明快さ、幾何学的な形態、そして機能的配置が前面に出ており、ファサードには大きな水平窓が配置されている。これらの窓は空間に光と風を取り入れ、モダニズムの理念を体現するものとして設計されている。また、白・青・赤の色彩が、むき出しのレンガの壁や柱、床や階段などに塗られており、ル・コルビュジエからの影響がうかがえる。



そして、この時期の注目すべき作品として《ルーヴェイラ集合住宅(Edifício Louveira、São Paulo)》(1950)が挙げられる。この集合住宅では、2つのタワーを道路に直交するように配置し、地上階をピロティで都市とつなげ、中庭の有機曲線のスロープで2棟をつなげることで、私的空間と公共空間の連続性を計画している。この連続性は、同時期の他のプロジェクトでも繰り返し取り上げられるテーマである4。また長大な水平窓と可動式ルーバーを組み合わせた立面には、モダニズムの言語とブラジルの気候への配慮の二重性がうかがえる。



このように、アルティガスの初期から中期にかけての作品にみられる窓は、さまざまな建築思想──ライト、コルビュジエ──の「参照」として機能しながら、単なる形式ではなく、ブラジルという地における固有の条件下で再構築された、独自の言語として展開されている。
2. オブジェクトと空隙

《FAU/USP》は、アルティガスの空間性がもっとも強固に表現された建築であり、コンクリートの塊が浮かぶその外観は都市に浮かぶ巨大なオブジェクトである5。まず注目すべきは、この建築における大胆な開放性である。正面エントランスにはガラスが使用されておらず(慣習的な「窓」が存在しない)、巨大な吹き抜けには常に外気が入り込む。そこにあるのはただの「空隙」であり、内と外がシームレスに接続された空間である。都市から続く舗装が内部にまで貫入し、モダニズムの空間言語がブラジルという熱帯の地で、よりピュアな形となって立ち上がったようである。
さらに、吹き抜け空間──通称「サラ・カラメロ」(Sala Caramelo、黄色い床の空間であることからキャラメル・ルームと呼ばれる)は窓のないエントランスを通して都市と地続きであるが、中に入るとほとんど天窓の光だけで、都市に埋蔵された巨大な「空隙」として感じられる。この「キャラメル・ルーム」は、開放的なエントランスとは対照的に外からは見えず、都市の中に隠されているようにもみえる。また、吹き抜け空間の1階の地下に面した場所には手すりが設けられておらず、重力や安全性を超えて、空間の一体感が強調されている。そして、階の上下運動の多くを階段室として閉じてしまうのでなく、スロープを配すことで水平・垂直移動の階層的序列を解体し、空間に流動性を生み出している6。



スタジオスペースでは、厚さ50mmほどの非常に薄く、天井より低い壁によって空間が緩やかに仕切られている。そして、スタジオ上部に設けられた天窓からは、柔らかな自然光が降り注ぎ、仕切られた空間全体に均質に行き渡る。また、食堂に置かれたキッチン兼カウンターは、わずか数本の柱で300mmほど浮かぶ。その佇まいは建築の中に建つ小さなモダニズム建築のようでもあり、カウンターの「ピロティ」から漏れ出る光は空間の連続性を強調する。



アルティガスの建築、特に《FAU/USP》では、室単位でのシーンの積み重ねではなく、場所ごとに現れる「図」としての「オブジェクト」と、オブジェクトの「地」としての「空隙」により空間が特徴づけられていた。それは、エントランスの巨大な開口部、キャラメルのような床と穴、薄い壁の上に広がる大きな気積、キッチンと床の間のピロティ、建築の外周に反復する木のような柱、そして地面に浮かぶ1枚のフラットルーフである。これらは、都市の街路や都市に並ぶ建築や樹木、そして都市を覆う空のようでもあり、その全体が、都市の中のフィクショナルな都市のようでもある。《FAU/USP》の「窓」は、「窓」という慣習的な意味合いを脱し、都市的環境を包摂する「空隙」として再定義されていたように思う。
3. 慣習と解放
アルティガスの初期の作品において「窓」は、外在的な建築思想を批評的に参照しつつ、それを固有の社会的・文化的条件から空間を解放させるための要素であった。ライト、コルビュジエといった国外の思想を取り入れつつ、アルティガスは「窓」を単なる開口部ではなく、都市・建築・人間が混ざり合う境界として設計していた。
アルティガスの初期の作品の「窓」が「外部参照的」であるとすると、《FAU/USP》にみられる「オブジェクト」や「空隙」は、ある種「自己参照的」に、アルティガスの建築に繰り返し現れる形式であった7。それは、日常と地続きでありつつも、当時の慣習的な環境から解放・象徴化された内部という点で、「モニュメンタルなインテリア」ともいえるかもしれない。
翻って考えてみると(誤解を恐れずにいえば)、アルティガスは初期の作品から一貫して、伝統的な空間が溢れる都市の中で空間のあらゆる序列や慣習的な意味を取り払い、シンプルに解放的な空間を設計したかったのではないだろうか。そして、外在的な建築を参照することも、自己参照的に自身の空間モデルを繰り返し展開することも、当時の伝統的で時代遅れな環境からの「解放」として読み取れ、アルティガスの建築に、「トロピカーリアの建築」ともいえる空間をみるのである8。
注釈
1:「パウリスタ派」はサンパウロを拠点とし、ルシオ・コスタやオスカー・ニーマイヤーらが主導した、リオデジャネイロを拠点とする「カリオカ派」と並ぶ存在である。前者は直線的な造形を、後者は曲線的な造形を特徴としており、両者はブラジル近代建築の二大潮流を形成している。
2:特に言及がないかぎり、本論考は主に文献1〜3と、実際に建築を訪れた経験をもとに考察されている。文献の引用は筆者訳。
3:戦後のブラジル建築は、二重の意味での「民主化」をともなって発展した。ひとつはモダニズムの合理主義への接近による民主化であり、もうひとつはブラジル共産党への支持と連動した社会的・政治的な民主化である。このような状況のなかで、アルティガスがその思想を建築として表現した。
4:同時期の作品として、アルティガスは《ロンドリーナ・バス・ターミナル(Stazione dei Pullman di Londrina、Londrina)》(1948)を設計している。ニーマイヤーとアフォンソ・レイディの建築にもみられるヴォールトが連続した屋根が、台形ボリュームの建築と都市をつなぐ。
5:《FAU/USP》に関しては文献1に詳しい。
6:《FAU/USP》にみられるスロープの採用は、アルティガスの住宅作品である《ドムシュケ邸(Casa Domschke、São Paulo)》(1974)にもみられる特徴である(文献2)。
7:文献2には《ドムシュケ邸》の他に、《エルザ・サルヴァトーリ・ベルクオ邸(Residência Elza Salvatori Berquó、São Paulo)》(1967)が掲載されている。この作品においても、開けた空間に4本の丸太柱や植民地時代の家具など、様々な起源をもつオブジェが並び、「外部化された内部」ともいえる空間が挿入されている。《FAU/USP》《ドムシュケ邸》《エルザ・サルヴァトーリ・ベルクオ邸》に共通するこの形式は、1枚のフラットルーフとその下に広がる「オブジェクト」と「空隙」で構成される。
8:文献2において、ダニエーレ・ピサーニは《エルザ・サルヴァトーリ・ベルクオ邸》の「丸太柱とコンクリートのフラットルーフの並置による、伝統と近代の共存」を例に出し、「ブラジルの近代建築におけるオズワルド・ヂ・アンドラーヂの影響」を指摘しているが、そこからトロピカーリア運動とブラジル建築との親和性が示唆される。トロピカーリア運動は1960年代後半にブラジルで誕生した音楽運動であるが、その背景には1928年にアンドラーヂが発表した『食人宣言』の影響がある。そして、その様々なジャンルの音楽を取り入れたハイブリッドな性格は、当時軍事政権とともに復活した、ノスタルジックな価値観を風刺する役割を担っていた。《FAU/USP》が完成したのはトロピカーリア運動以前であり、《エルザ・サルヴァトーリ・ベルクオ邸》はトロピカーリア運動の始まりとほぼ同時期に完成している。トロピカーリア運動に関しては文献3に詳しい。
参考文献
1) Fernando Serapião, Ana Paula Pontes, Flávio L. Motta, Vilanova Artigas, Vilanova Artigas and FAU/USP (Bilingual Edition), Editora Monolito, 2015
2) CASABELLA, n.953, 2024.1
3) クリストファー・ダン著、国安真奈訳『トロピカーリア:ブラジル音楽を変革した文化ムーヴメント』音楽之友社、2005年
010 現代住宅作品の設計論における造形要素の参照原理
現代住宅作品の設計論における造形要素の参照原理
type: thesis
date: 2025.9
publication: –
博士論文、東京科学大学(旧東京工業大学)
cv
jp
杉崎 広空
1994年宮城県生まれ。建築家。w/共同主催。博士(工学)。2026年より筑波大学芸術系特任助教。
2026- 筑波大学芸術系特任助教(2026年1月着任)
2025 東京科学大学(旧東京工業大学)環境・社会理工学院建築学系建築学コース博士後期課程 修了 博士(工学)(2025年12月)
2023 w/ 設立
2021 東京工業大学環境・社会理工学院建築学系建築学コース修士課程 修了 修士(工学)
2019 筑波大学芸術専門学群 卒業 学士(芸術学)
2017 ミラノ工科大学 留学
1994 宮城県角田市生まれ
teaching
2024 東京工業大学, 「建築ディテール特論」, アシスタント
workshops
2020 「フォーム・スケール・アナロジー」, 東京工業大学 塩崎太伸研究室
projects and buildings
2025 PB, 東京
2025 CG, 東京
2024 ST, 東京
2024 TH, 神奈川
2024 SM, 東京
2024 AT, 東京
2023 OS, 東京
2022 角田の住宅, 宮城
2021 house for a painter, 東京
2019 analogical architecture, 宮城
2017 Hyaloid Servant, ヴェネチア
thesis
2023 現代住宅作品におけるスケールの参照関係
2022 現代住宅作品におけるかたちの参照関係
2021 現代住宅作品における色彩の参照関係
2019 アルド・ロッシによるコラージュ作品『類推的都市』の構成に関する研究
awards
2021 第20回冬夏賞, 東京工業大学, 修士論文
2019 せんだいデザインリーグ2019, 入選
2017 Waterproof —International Competition in Venice, 3位, 審査員特別賞
2016 JUTAKU KADAI, Housing Project in Tokyo 2016, 入選
exhibitions and events
2025 ARCHIZINES FAIR 2025, 京都
2025 we refer to..., plateau books, 東京
2025 we were in the kitchen, CAGE GALERY, 東京
2024 ARCHIZINES FAIR 2024, 京都
2024 SITCOMS ep.1 “non-action lighting“, the sitcoms(h.sugisaki+m.tsuji), 二手社, 東京
2017 Waterproof – International Competition in Venice, ベネチア建築大学, ベネチア
2016 JUTAKU KADAI, Housing Project in Tokyo 2016, 東京
2015 Uzawa Laboratory and Exhibition, 筑波大学, 茨城
grants
2023 トロピカーリア運動と1960年代以降のブラジル建築に関する研究 :ポスト・ポストモダニズムの建築を目指して 公益財団法人 窓研究所
2021-2024 公益財団法人 旭硝子財団
2018-2024 公益財団法人 佐々木泰樹育英会
publications
2025 CG / PB (we were in the kitchen, we refer to…)
2025 最大公約数としての色彩, 建築雑誌2025年7月号No.1803, 日本建築学会, p.27
2024 住宅特集6月号 新建築社 マンション1室リノベーション特集
2024 住宅特集5月号 新建築社 ネクスト・ジェネレーション特集
2024 住宅特集5月号 新建築社 角田の住宅, 環境、自律、匿名
2023 佐々木泰樹育英会 機関誌vol.4
2023 佐々木泰樹育英会 機関誌 vol.3
2023 "ka 047”, “ fala lecture ‘clocks and clouds’ ”, 東京工業大学
2023 “Everything is Repeating”, documentation for “house in kakuda”
2019 佐々木泰樹育英会 機関誌 vol.2
2018 The Plan, Waterproof —International Competition in Venice
2016 JUTAKU KADAI: 住宅課題賞2016 建築系大学住宅課題優秀作品展
talk
2025 レファレンスのレファレンス, good reference club, 東京
2025 we refer to..., we were in the kitchen, plateau books, 東京
2025 食人と参照, コ本や, 東京
2025 トロピカーリア音楽から建築をかんがえる ~ブラジル建築レクチャーシリーズ(全5回)オープニングセッション~, コ本や, 東京
_
en
hirotaka sugisaki
Born in Miyagi, Japan, in 1994. Architect. Co-founder of w/. Dr.Engineering. Since 2026, Assistant Professor, Art and Design, University of Tsukuba.
2026- Assistant Professor, Art and Design, University of Tsukuba
2025 TIT(Dr.Eng.)
2023 white lines
2021 TIT(MA)
2019 UTsukuba(BA)
2017 Politecnico di Milano
1994 (Miyagi)
teaching
2024 TIT, Architectural Detail, TA
workshops
2020 form scale analogy, SHIOZAKI lab, tokyo
projects and buildings
2025 PB, tokyo, japan
2025 CG, tokyo, japan
2024 ST, tokyo, japan
2024 TH, kanagawa, japan
2024 SM, tokyo, japan
2024 AT, tokyo, japan
2023 OS, tokyo, japan
2022 “a house”, miyagi, japan
2021 house for a painter, japan, project
2019 analogical architecture, miyagi, japan, project
2017 Hyaloid Servant, venice, italy, project
thesis
2023 Referential Relationship of Scale in Contemporary Houses
2022 Referential Relationship of Form in Contemporary Houses
2021 Referential Relationship of Color in Contemporary Houses
2019 Analysis of Aldo Rossi’s “Analogical City” – Through Analysis of Collage
awards
2021 20th to-ka award, TIT thesis Award 2021, TIT
2019 diploma project, Selected, SDL 2019
2017 Waterproof —International Competition in Venice, 3rd Prize and Honorary Mention
2016 JUTAKU KADAI, Housing Project in Tokyo 2016, Selected
exhibitions and events
2025 ARCHIZINES FAIR 2025, kyoto
2025 we refer to..., plateau books, tokyo
2025 we were in the kitchen, CAGE GALERY, tokyo
2024 ARCHIZINES FAIR 2024, kyoto
2024 SITCOMS ep.1 “non-action lighting“, the sitcoms(h.sugisaki+m.tsuji), tokyo
2017 Waterproof – International Competition in Venice, IUAV
2016 JUTAKU KADAI, Housing Project in Tokyo 2016
2015 Uzawa Laboratory and Exhibition, UTsukuba
grants
2023 Study on Brazilian Architecture from 60s (Tropicália), window research institute
2021-2024 asahi glass foundation
2018-2022 sasaki scholarship society
publications
2024 JT2406, toward a soft type for interior landscape, TH
2024 JT2405, shinkenchiku-sha, toward delicious deadpan “images”
2024 JT2405, shinkenchiku-sha,”ambient, autonomous, anonymous”, House in Kakuda
2023 bulletin of kylyn-kai vol.4, sasaki scholarship society
2023 bulletin of kylyn-kai vol.3, sasaki scholarship society
2023 “ka 047”, journal of TIT, report for “ fala lecture ‘clocks and clouds’ ”
2023 “Everything is Repeating”, documentation for “house in kakuda”
2019 bulletin of kylyn-kai vol.2, sasaki scholarship society
2018 The Plan, Waterproof —International Competition in Venice
2016 JUTAKU KADAI, Housing Project in Tokyo 2016
talk
2025 Referring to Reference, good reference club, tokyo
2025 we refer to..., we were in the kitchen, plateau books, tokyo
2025 Cannibalism and Reference, honkbooks, tokyo
2025 Thinking about Architecture through Tropicália Music
~Brazilian Architecture Lecture Series (5 sessions): Opening Session~, honkbooks, tokyo
contact
hirotakasugisaki@gmail.com
+818060519814
●